根据《中华人民共和国政府采购法》、《政府采购货物和服务招标投标管理办法》、《广西壮族自治区财政厅关于公布广西政府集中采购目录及标准(2020年版)的通知》等规定,现就南宁青秀山风景名胜旅游开发有限责任公司关于2026年景区景观优化调整工作—景观卫生设施设备维护及提升(景观垃圾桶及扫地机器人等采购工作)进行公开竞价采购,欢迎符合条件的供应商前来竞价。
一、项目名称:2026年景区景观优化调整工作—景观卫生设施设备维护及提升(景观垃圾桶及扫地机器人等采购工作)
二、项目编号:2026QXS-YLB-HW07
三、采购内容数量及供货时间:
序号 | 货物名称 | 规格 | 单位 | 数量 | 样式效果图 |
1 | 景观垃圾桶 | 1.铝合金材质框架,腔体型材,厚度:1.0mm; | 套 | 160 | |
2.整体烤漆工艺,木纹色,打磨抛光; | |||||
3.含玻璃钢材质内置垃圾桶(高*长*宽:44cm*31cm*30cm); | |||||
4.含垃圾分类牌,印制青秀山logo; | |||||
5.含运输、安装; | |||||
6.含税。 | |||||
7.后附样式结构图。 | |||||
合计 | 160 | ||||
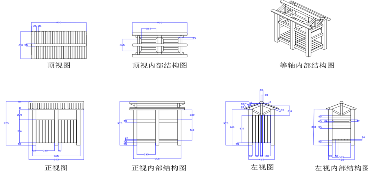
样式结构图(单位:mm)

★要求:
1.报价单,包含单价和总金额,超过上限控制价无效。
2.提供营业执照。
2026年5月下旬前完成所有供货(以合同约定日期为准)。
如需进一步了解详细内容,详见竞价采购文件。
四、项目预算金额(人民币):贰拾陆万贰仟肆佰元整(¥262400.00 )。
五、竞价人的资格要求:
1.符合《中华人民共和国政府采购法》第二十二条的规定。
2.本项目不接受联合体竞价。
3.单位负责人为同一人或者存在直接控股、管理关系的不同供应商,不得参加同一合同项下的采购活动。
4.对在“信用中国”网站(www.creditchina.gov.cn)、中国政府采购网(www.ccgp.gov.cn)等渠道列入失信被执行人、重大税收违法案件当事人名单、政府采购严重违法失信行为记录名单及其他不符合《中华人民共和国政府采购法》第二十二条规定条件的供应商,不得参与本次采购活动。
5.在本网站存在违约或者失信行为而被列入黑名单的供应商,不得参与本次采购活动。
6.其他要求:
在南宁青山清竞价采购网(http://www.qxscg.cn)注册成功的供应商。
六、竞价文件的获取:
1.发放时间:2026年4月21日08:00至2026年4月24日18:00。
2.发放网站:南宁青山清竞价采购网(http://www.qxscg.cn)
七、竞价截止时间和地点:
竞价人应于2026年4月24日18:00止,将竞价文件上传至南宁青山清竞价采购网(http://www.qxscg.cn),逾期上传的将予以拒收。
八、竞价保证金(人民币):贰仟陆佰元整(¥2600.00)
报价人应于2026年4月24日18时前从报价人对应的对公账户转账到以下指定的竞价保证金专用账户,并于竞价截止前上传转账凭证,否则做否决报价处理。
开户名称:南宁青秀山风景名胜旅游开发有限责任公司
开户银行:广西北部湾银行南宁市教育支行
帐 号:8000 2278 5100 062
九、评审时间及地点:
本次竞价将于2026年4月27日至4月29日,由南宁青秀山风景名胜旅游开发有限责任公司采购小组择期在公司会议室(凤岭南路6-6号)开展评审工作,中选公告最迟于至4月29日18:00前公布在青山清竞价采购网的中选公告模块。竞价人届时登录平台开展查询工作。
十、评审方式:
综合评分法。
※十一、评审费用
本次项目产生的评审费用由中选供应商支付,支付金额按照广西壮族自治区财政厅文件,桂财政[2017]15号:《关于印发广西壮族自治区政府采购评审专家劳务报酬支付标准暂行规定的通知》执行。
十二、网上查询地址:
本次竞价采购公告及中选公告在南宁青山清竞价采购网(http://www.qxscg.cn)发布。
十三、业务咨询:
采购单位:南宁青秀山风景名胜旅游开发有限责任公司
地址:南宁市青秀区凤岭南路6-6号
联系人及电话:黄工 13471165367
南宁青秀山风景名胜旅游开发有限责任公司
2026年4月21日